2025-12-31 4540 109

空间叙事集以空间叙事深入解析案例背后的设计理念与生活场景。通过建筑语言与空间布局的细致解读,呈现不同风格的独特魅力与居住体验,帮助大家在多样的设计表达中,找到真正契合自身生活方式与审美取向的理想空间。
好的设计不是复制模板,而是找到与你最契合的那一种表达。
#意式极简别墅 — 质感生活风
今天给大家带来的案例是是一间以 “极简质感” 为核的意式别墅设计。
意式的高级,从不是浮华的堆砌,而是以线条的克制、材质的纯粹、光影的流动,在空间里铺陈出 “松弛且精致” 的生活底色。别墅的尺度,让这种质感有了更舒展的承载,每一处细节都藏着 “好看又好用” 的实在。




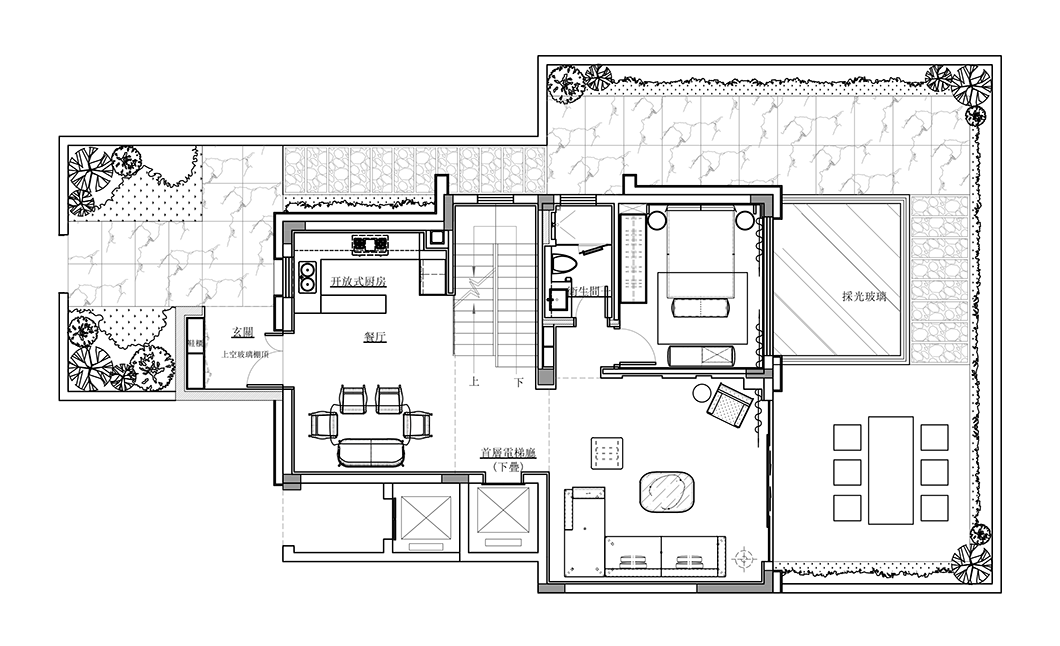
1.庭院、天井茶区
室内外连通设计,让自然与生活无界衔接

庭院采用 “室内外通透衔接” 的布局:落地玻璃门完全打开后,客厅与庭院形成连通的开阔空间,既延伸了视觉尺度,也让室内能直接引入庭院的自然光线与绿意。
材质选择上,木质餐桌搭配藤编椅,延续了室内的自然质感,同时户外材质的耐用性也适配庭院的使用场景。
景松、石径的布置,既丰富了庭院的层次,也让这里成为日常放松、小聚的休闲区,不用远行就能拥有 “户外度假感”。

天井茶区的核心设计是 “天窗引光”:借助天窗引入自然光线,随时间变化的光斑能为空间增加动态氛围,同时解决了天井区域的采光问题,让角落空间更通透。
材质上采用 “粗犷 + 细腻” 的搭配:石纹背景墙自带自然肌理,提升了空间质感。皮质座椅则补充了舒适触感,两者结合既符合意式极简的审美,也让这个小空间既能承载独处放空,也能满足好友浅聊的需求。
2.客厅
浅调基底 + 线条层次,让空间舒展不单调

客厅以浅色调为基底:浅白墙面 + 浅灰地面,弱化了空间的压迫感,让别墅的尺度更显开阔。顶面与墙面用黑色线条勾勒轮廓,既强化了空间的层次,也让极简风格不流于平淡。

收纳柜采用 “展示 + 实用” 结合的设计:内嵌灯光的开放格可以展示藏品,提升空间精致感。封闭柜则用于收纳日常杂物,保持视觉整洁。弧形沙发的选择,既弱化了空间的棱角感,也能容纳更多人互动,让客厅成为家庭休闲的核心区。
3.餐厅
配色平衡灯光点缀
让聚餐兼具质感与舒适

餐厅选用的是大理石餐桌的冷调与木质椅的温润形成平衡,金色摆件与茶色花瓶的点缀,让意式的精致藏在细节里。
墙面的弧形灯带是空间的 “点睛之笔”,既柔化了墙面的硬朗,也为用餐氛围添了温柔光晕。餐具与花艺的搭配,让日常聚餐也能有 “轻仪式感”,不用刻意铺陈,质感便自然流露。
4.厨房
实用与美学双向契合

厨房是 “理性与温度的平衡场”:深灰柜体与大理石纹理的碰撞,奠定了意式的冷调质感。隐藏式电器与嵌入式收纳,让台面保持整洁的同时,适配别墅的高频烹饪需求。
灯光是空间的 “温柔调剂”—— 吊柜下的线性光,既补足了操作照明,也柔化了材质的冷硬。台面上的花艺与餐酒,让理性的厨房多了生活的松弛感,烹饪的烟火气也能与极简美学共存。
5.吧台、健身区
功能复合,让兴趣与生活同频

吧台与健身区的复合设计,是 “意式实用美学的延伸”:深色酒柜 + 大理石台面,延续了空间的质感基调。内嵌灯光衬出酒具的精致,既是小酌的休闲区,也是社交的互动场。
健身区与吧台仅以玻璃门分隔,运动后转身便能取一杯饮品,兴趣与生活的节奏在此自然衔接 —— 意式的极简从不是 “牺牲功能”,而是让空间为生活服务。

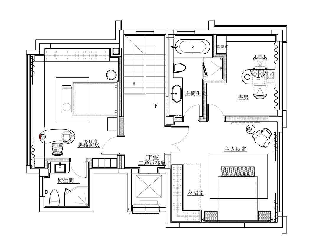
6.主卧
温柔包裹,藏着私密的松弛感

主卧是采用的是浅白与暖棕的搭配,柔化了意式的冷调。开放式衣帽间的设计,既满足了收纳需求,也让穿搭的日常多了仪式感。

自然光透过百叶帘漫入,衬着床头的艺术装置,让休憩空间在极简里透着温柔 —— 这里不用刻意 “精致”,只是卸下疲惫的松弛角落。
7.儿童房
个性嵌入,让每个空间都有专属温度

男孩睡房是采用了深蓝柜体与漫威装饰的搭配,适配年轻居者的审美。弧形书桌与嵌入式收纳,在有限空间里平衡了学习与休憩的功能。
意式的极简从不是 “千篇一律”,而是在统一的质感里,嵌入每个居者的专属喜好。

8.书房
理性与艺术共生,是独处的精神场域

书房是 “精神世界的容器”:深色书桌 + 皮质座椅,奠定了理性的工作基调。艺术摆件与弧形台灯的搭配,让空间在实用里透着艺术感。

自然光透过纱帘漫入,衬着玻璃柜里的书籍,让独处的阅读、工作时刻,都浸着意式的质感与松弛。
这间意式别墅,从不是 “风格化的展示品”,而是 “质感生活的容器”:它以极简线条为骨,以自然材质为底,以功能实用为核,让每一处设计都服务于日常 —— 松弛的尺度、纯粹的质感、适配的功能,共同构建出 “既具高阶审美,又能承载生活温度” 的居住空间。