2020-04-09 11857 263
家是可以让人卸下防备,彻底放松的私人领域。而新中式,是文化沉淀留下的果实,它隔离了世外的喧嚣与嘈杂,拥有超凡脱俗的风雅与沉稳!宁静祥和的东方氛围让人不自觉慢下来,思考生活,感受时间流逝。设计师以“方圆之间”为设计理念,方中带圆,圆中见方,用纯粹的设计手法将中式的韵味引用到每寸空间,与现代家居产生完美碰撞。
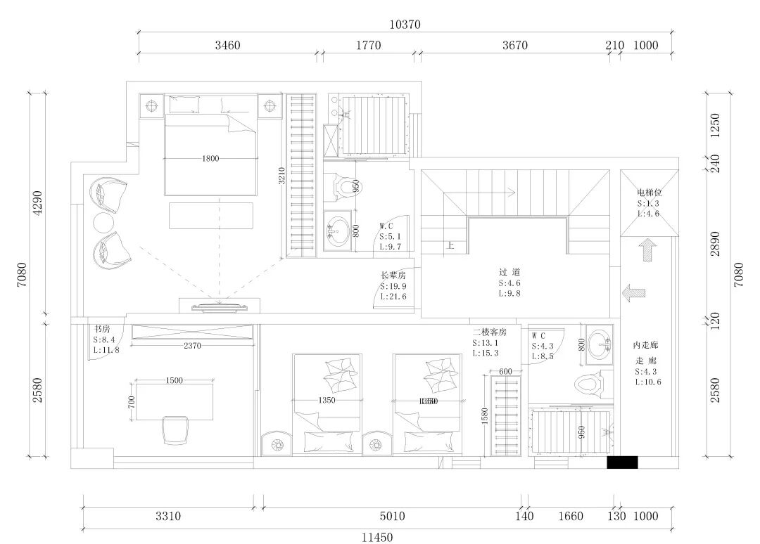
『平面设计图』

△一楼平面图

△二楼平面图

△三楼平面图
『Living room客厅』


客厅的整体以棕色为主色调,沉稳的光线和错落有致的空间布局,让家中焕发了崭新的生命力。客厅的每一寸空间都极为讲究,中式元素与现代材质的巧妙结合,利用“删繁去奢,绘事后素”,达到“大美无言,大象无形”的气质感,巧妙运用具有中式代表性的家具与装饰元素。以达到层次感,让空间充满生命力与无限的可能性。
『Dining room餐厅』

餐厅,以简单的色调和线条,让用品繁多的餐厅空间看起来整洁与简约。餐桌以中式风格惯用的圆桌,金色线条的垂直吊灯散发出的光芒,营造出温馨、缓慢的感觉。一家人其乐融融的聚集在一起,享受美食在味蕾上的快感,一起谈笑风生!
『Study书房』

书房,是让人全身心投入学习或工作的好地方,空间延用了客厅的主色调,搭配具有中式元素的书桌椅,让一切尽显禅意。巨幅落地窗,搭配棕色窗帘,一眼望去,景色尽收眼底,美丽而低调。两边对称的木制书柜,中间植入一幅挂画,增添了书房的宁静与舒适氛围。
『Bedroom卧室』

主卧,在延用客厅的主色调上再加入灰色与白色,床头采用水墨画装饰,与灰色的墙面形成对比,成为空间的视觉焦点。两边的床柜置放方形台灯,为空间增加了另一个层次的趣味。清晨醒来,穿过落地窗照射进来的第一抹阳光,带给居住者美好的视觉体验和享受。

父母的卧室,设计师以“舒适、简洁质朴”为切入点,空间引用的中式元素相比较多,床头与墙壁的挂画,呈现了东方之美,远看是留白和隐喻之美,而近看却有着东方神韵的抽象语言。空间的设计不仅仅是画面的美,更多的是身处空间的感受,然后自然地流入到心间。

小孩房,为了避免新中式风格带来的古典与沉稳,设计师在整个空间的色调中,添加一抹蓝色与粉色,亮丽星状的垂直吊灯、菱形的墙面,带来一丝童真的趣味,来满足孩子们居住的空间情感需求,展现生活的痕迹。

客房充满着东方江南的写意,营造平和、舒适且放松的氛围,以写意之笔在墙面上铺开一片鸟语花香画面作为呼应。床上的枕头、盖毯多为绿色,让客房散发出一股如竹如叶的清新之气。

以白色为背景,以柔和的褐色为主色,以浓郁的棕色画以轮廓,让房间的线条更加清晰。在背景墙的山画与地毯的相互呼应下,设计师再将棕色的床置如空间中,拉开浅色调的距离,给人以富足、稳重,智慧之感。让居住者呆在这里能够身心愉悦,给他一个舒适的体验。
